How To Create A Wall Section In Revit . In the architecture tab, build panel, expand wall and select wall: Open a plan, section, elevation, or detail view. open a plan, section, elevation, or detail view. create a section view. in this video, we're going to use autodesk revit to take you through the steps required to customise your designs and get the best out. (optional) in the type selector, select a view. there are multiple methods for creating a wall section using revit. apply alignment constraints to walls. like other basic elements in a revit building model, walls are instances of predefined system family types, 00:11. in this tutorial, we'll dive deep into creating and detailing wall sections using autodesk revit. In revit, begin a project using the default.rte template. In this tutorial you will. Add a section line and crop region to define a new section view. Click view tab create panel (section).
from www.youtube.com
Add a section line and crop region to define a new section view. Open a plan, section, elevation, or detail view. open a plan, section, elevation, or detail view. like other basic elements in a revit building model, walls are instances of predefined system family types, 00:11. (optional) in the type selector, select a view. apply alignment constraints to walls. in this video, we're going to use autodesk revit to take you through the steps required to customise your designs and get the best out. there are multiple methods for creating a wall section using revit. create a section view. In this tutorial you will.
Structural Elements in Revit Walls Revit Tutorial YouTube
How To Create A Wall Section In Revit In revit, begin a project using the default.rte template. In this tutorial you will. open a plan, section, elevation, or detail view. In revit, begin a project using the default.rte template. In the architecture tab, build panel, expand wall and select wall: like other basic elements in a revit building model, walls are instances of predefined system family types, 00:11. Open a plan, section, elevation, or detail view. (optional) in the type selector, select a view. in this tutorial, we'll dive deep into creating and detailing wall sections using autodesk revit. create a section view. apply alignment constraints to walls. there are multiple methods for creating a wall section using revit. Click view tab create panel (section). Add a section line and crop region to define a new section view. in this video, we're going to use autodesk revit to take you through the steps required to customise your designs and get the best out.
From billingsblessingbags.org
More Basics With Revit Walls Profiling Your Foundation Synergis How To Create A Wall Section In Revit in this tutorial, we'll dive deep into creating and detailing wall sections using autodesk revit. there are multiple methods for creating a wall section using revit. Add a section line and crop region to define a new section view. (optional) in the type selector, select a view. like other basic elements in a revit building model, walls. How To Create A Wall Section In Revit.
From mavink.com
Revit Wall Section Detail How To Create A Wall Section In Revit Click view tab create panel (section). In this tutorial you will. Add a section line and crop region to define a new section view. In the architecture tab, build panel, expand wall and select wall: in this tutorial, we'll dive deep into creating and detailing wall sections using autodesk revit. apply alignment constraints to walls. in this. How To Create A Wall Section In Revit.
From www.youtube.com
Wall Floor Connection in Revit Tutorial YouTube How To Create A Wall Section In Revit open a plan, section, elevation, or detail view. in this video, we're going to use autodesk revit to take you through the steps required to customise your designs and get the best out. like other basic elements in a revit building model, walls are instances of predefined system family types, 00:11. Open a plan, section, elevation, or. How To Create A Wall Section In Revit.
From www.youtube.com
Complex Walls with Construction in Revit Tutorial YouTube How To Create A Wall Section In Revit In revit, begin a project using the default.rte template. Open a plan, section, elevation, or detail view. open a plan, section, elevation, or detail view. apply alignment constraints to walls. like other basic elements in a revit building model, walls are instances of predefined system family types, 00:11. Click view tab create panel (section). in this. How To Create A Wall Section In Revit.
From www.youtube.com
104 Tutorial How to Copy Detail Components to or from Wall Sections in How To Create A Wall Section In Revit In the architecture tab, build panel, expand wall and select wall: apply alignment constraints to walls. in this tutorial, we'll dive deep into creating and detailing wall sections using autodesk revit. create a section view. in this video, we're going to use autodesk revit to take you through the steps required to customise your designs and. How To Create A Wall Section In Revit.
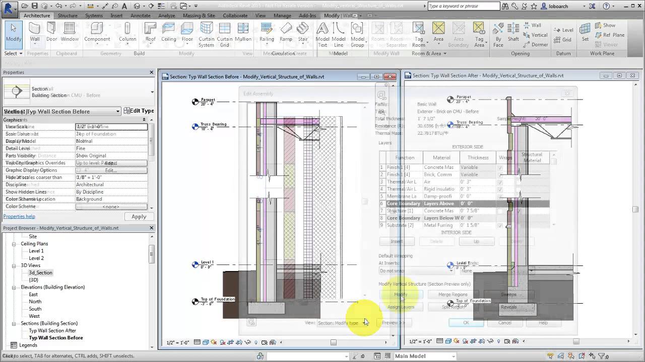
From www.revit.news
Modify the Vertical Structure of Walls Revit news How To Create A Wall Section In Revit Open a plan, section, elevation, or detail view. create a section view. In revit, begin a project using the default.rte template. in this video, we're going to use autodesk revit to take you through the steps required to customise your designs and get the best out. like other basic elements in a revit building model, walls are. How To Create A Wall Section In Revit.
From www.youtube.com
Walls in Revit Tutorial YouTube How To Create A Wall Section In Revit (optional) in the type selector, select a view. In this tutorial you will. apply alignment constraints to walls. Open a plan, section, elevation, or detail view. in this video, we're going to use autodesk revit to take you through the steps required to customise your designs and get the best out. In the architecture tab, build panel, expand. How To Create A Wall Section In Revit.
From bimchapters.blogspot.com
BIM Chapters Revit's Section Box Tips and Tricks How To Create A Wall Section In Revit open a plan, section, elevation, or detail view. Click view tab create panel (section). create a section view. In the architecture tab, build panel, expand wall and select wall: In this tutorial you will. Add a section line and crop region to define a new section view. (optional) in the type selector, select a view. in this. How To Create A Wall Section In Revit.
From www.youtube.com
how to create sloped wall in revit YouTube How To Create A Wall Section In Revit like other basic elements in a revit building model, walls are instances of predefined system family types, 00:11. apply alignment constraints to walls. there are multiple methods for creating a wall section using revit. create a section view. in this video, we're going to use autodesk revit to take you through the steps required to. How To Create A Wall Section In Revit.
From www.youtube.com
Wall Section (Revit Step 3.0) YouTube How To Create A Wall Section In Revit in this tutorial, we'll dive deep into creating and detailing wall sections using autodesk revit. In the architecture tab, build panel, expand wall and select wall: (optional) in the type selector, select a view. open a plan, section, elevation, or detail view. like other basic elements in a revit building model, walls are instances of predefined system. How To Create A Wall Section In Revit.
From www.youtube.com
Revit Families Series Custom Wall Based Casework A How To Guide How To Create A Wall Section In Revit create a section view. (optional) in the type selector, select a view. In this tutorial you will. Add a section line and crop region to define a new section view. like other basic elements in a revit building model, walls are instances of predefined system family types, 00:11. open a plan, section, elevation, or detail view. . How To Create A Wall Section In Revit.
From www.synergis.com
More Basics with Revit Walls Profiling Your Foundation Walls Synergis® How To Create A Wall Section In Revit there are multiple methods for creating a wall section using revit. In this tutorial you will. Open a plan, section, elevation, or detail view. Add a section line and crop region to define a new section view. (optional) in the type selector, select a view. in this tutorial, we'll dive deep into creating and detailing wall sections using. How To Create A Wall Section In Revit.
From www.youtube.com
Structural Elements in Revit Walls Revit Tutorial YouTube How To Create A Wall Section In Revit in this tutorial, we'll dive deep into creating and detailing wall sections using autodesk revit. In the architecture tab, build panel, expand wall and select wall: Add a section line and crop region to define a new section view. there are multiple methods for creating a wall section using revit. apply alignment constraints to walls. (optional) in. How To Create A Wall Section In Revit.
From www.synergis.com
Back to Basics with Revit Walls Part 3 Bringing It All Together How To Create A Wall Section In Revit Add a section line and crop region to define a new section view. Open a plan, section, elevation, or detail view. like other basic elements in a revit building model, walls are instances of predefined system family types, 00:11. (optional) in the type selector, select a view. create a section view. there are multiple methods for creating. How To Create A Wall Section In Revit.
From bimchapters.blogspot.com
BIM Chapters Decouple Revit Wall Layers for Vertical Offset How To Create A Wall Section In Revit create a section view. Add a section line and crop region to define a new section view. In revit, begin a project using the default.rte template. (optional) in the type selector, select a view. open a plan, section, elevation, or detail view. in this video, we're going to use autodesk revit to take you through the steps. How To Create A Wall Section In Revit.
From www.youtube.com
Revit Cutting out a Wall section YouTube How To Create A Wall Section In Revit there are multiple methods for creating a wall section using revit. like other basic elements in a revit building model, walls are instances of predefined system family types, 00:11. Open a plan, section, elevation, or detail view. in this tutorial, we'll dive deep into creating and detailing wall sections using autodesk revit. open a plan, section,. How To Create A Wall Section In Revit.
From www.mgfx.co.za
How to use your own sections in the Revit Wood Framing Wall extension tool How To Create A Wall Section In Revit like other basic elements in a revit building model, walls are instances of predefined system family types, 00:11. Add a section line and crop region to define a new section view. (optional) in the type selector, select a view. In revit, begin a project using the default.rte template. In the architecture tab, build panel, expand wall and select wall:. How To Create A Wall Section In Revit.
From www.youtube.com
Revit; Wall Section 03 YouTube How To Create A Wall Section In Revit create a section view. In the architecture tab, build panel, expand wall and select wall: like other basic elements in a revit building model, walls are instances of predefined system family types, 00:11. there are multiple methods for creating a wall section using revit. apply alignment constraints to walls. open a plan, section, elevation, or. How To Create A Wall Section In Revit.